Casa semindipendente in vendita

Baronissi, Via bracale - Antessano
€ 280.000
5 locali 5 locali
120 Mq 120 Mq
2 bagni 2 bagni

Casa semindipendente in vendita

Baronissi, Via bracale - Antessano

Descrizione annuncio

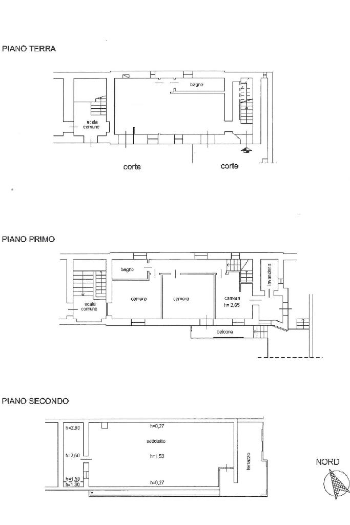
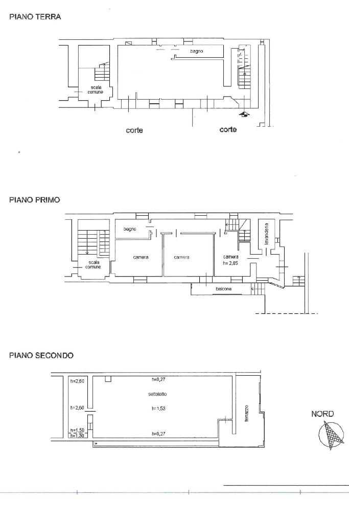
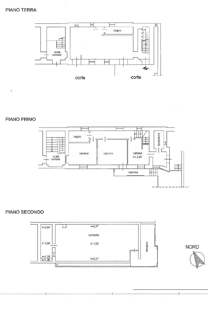
Nel cuore della località di Antessano, nel comune di Baronissi, è disponibile per la vendita una casa semindipendente che offre ampi spazi e comfort moderni. L'immobile, di 120 mq, si sviluppa su 2 livelli e comprende cinque locali, perfetti per accogliere una famiglia o per chi desidera ampi spazi abitativi. La casa è stata recentemente ristrutturata nel 2023, garantendo finiture moderne e impianti aggiornati. Uno dei punti di forza di questa proprietà è la sua posizione libera su tre lati, che assicura luminosità e privacy. Inoltre, l'abitazione è ottimamente collegata, facilitando gli spostamenti verso le principali vie di comunicazione. All'esterno, una generosa zona di circa 350 mq, tra corte e giardino, offre spazio per attività all'aperto, giardinaggio o momenti di relax. Questa casa rappresenta un'opportunità ideale per chi cerca una soluzione abitativa confortevole e ben posizionata.

Dotata di tutti gli impianti di ultima generazione relativi al risparmio energetico, ovvero classe energetica A4,
potenza impianto fotovoltaico 5,25 KW
solare termico: 2,47 KW accumulo: 150 litri
Sistema ibrido Caldaia a condensazione (32,0 KW) + pompa di calore (6,08 KW)
sistema di accumulo: 9,60 kWh
colonnina di ricarica elettrica.

Possibilità di rendere la proprietà totalmente indipendente con acquisto di immobile attiguo. (INFO IN AGENZIA)

Per ulteriori informazioni e per organizzare una visita non esitare a contattarci.

Vi invitiamo a seguire la nostra agenzia sui nostri canali social, come Facebook, Instagram, Threads, e TikTok. Sulla nostra pagina Agenzia Tecnocasa Baronissi troverete ulteriori dettagli su questa e altre interessanti offerte immobiliari.

Mostra tutto

Nelle vicinanze

Trasporto pubblico Trasporto pubblico
Baronissi
Baronissi
1,3 Km
Pellezzano
Pellezzano
1,9 Km
Unità D'Italia (Scuole Medie)
Unità D'Italia (Scuole Medie)
1,4 Km
Casal Barone-via Cirillo 19
Casal Barone-via Cirillo 19
1,4 Km
Acquamela
Acquamela
940 m
Ricariche auto elettriche Ricariche auto elettriche
EnelX Fast IKEA salerno
1,7 Km
Fisciano Fratelli Napoli | EnelX
2,5 Km
Galdieri Auto | EnelX
2,7 Km
Scuole Scuole
Scuole
980 m
Scuola Elementare
1,4 Km
Istituto Tecnico Industriale Statale Focaccia
1,5 Km
Liceo Scientifico Margherita Hack
1,6 Km
Scuola Elementare E Materna
1,7 Km
Supermercati Supermercati
EuroSpin
980 m
Sisa
1,2 Km
Bar Bar
D' Bar
1,5 Km
Baroo
1,6 Km
Bar Citro
2,8 Km
Bar Scacco Matto
2,8 Km
Ristoranti Ristoranti
Autogrill
1,3 Km
Il Gusto Giusto
1,4 Km
Ristorante Capriccio
1,5 Km
Ristorante IKEA
1,8 Km
Ristoranti
1,8 Km
Mostra tutto

Caratteristiche

Rif.:
61150932
Piano:
Su più livelli di 2
Totale piani:
2
Posti auto:
2
Balconi:
1
Terrazzi:
2
Mostra tutto
Prezzo Prezzo
€ 280.000
Rata mutuo Rata mutuo
€ 1.330 / mese
Spese annue Spese annue
€ 0
Proponi il tuo prezzoProponi il tuo prezzo

Classe Energetica

A4
A4
A4
A4
A4
A4
A4
A4
A4
EP globale non rinnovabile:
19.94 kW h/m² anno
EP globale rinnovabile:
109.02 kW h/m² anno
EP invernale del fabbricato:
EP estiva del fabbricato:
Anno di costruzione:
1967
Riscaldamento:
Autonomo
Tipo impianto:
A radiatori
Tipo alimentazione:
Metano

Ti interessa visionare l'immobile?

Fissa un appuntamento  Fissa un appuntamento

Richiedi informazioni

Clicca su Leggi per aprire l'informativa
* Questi campi sono obbligatori

Calcola il tuo mutuo

Semplice e senza impegno
Anticipo

( % )
Mutuo

( % )

pochi semplici passi

inserisci i tuoi dati
Questionario completato
Grazie per aver richiesto un appuntamento senza impegno con un nostro Consulente del Credito e Assicurativo.

Hai inserito correttamente tutti i dati necessari e a breve riceverai una e-mail con un link da convalidare per inviare i tuoi dati.
Affiliato
Studio Baronissi Srl
Corso Garibaldi, 75A/B 84081 Baronissi (SA)

Il nostro staff


  • Antonio Bracalello
    Affiliato

  • Alessio Abate
    Collaboratore

  • Sebastiano Gianluca Annunziata
    Collaboratore

  • Anna Rega
    Affiliata

  • Mario Coppola
    Collaboratore
Corso Garibaldi, 75A/B 84081 Baronissi (SA)
Zona: Baronissi - Pellezzano
Mostra su mappa
Orari: 09:00-13:00/16:00-20:00
Affiliato
Studio Baronissi Srl
Corso Garibaldi, 75A/B 84081 Baronissi (SA)

2026 Tecnocasa Franchising S.p.A. - P. IVA 08365160152 - Via Monte Bianco 60/A 20089 Rozzano (MI). Ogni agenzia ha un proprio titolare ed è autonoma. Privacy policy | Policy utilizzo | Cookie policy