Porzione di bifamiliare in vendita

Baronissi, Via Aniello Romano - Orignano
€ 345.000
6 locali 6 locali
200 Mq 200 Mq
3 bagni 3 bagni

Porzione di bifamiliare in vendita

Baronissi, Via Aniello Romano - Orignano

Descrizione annuncio

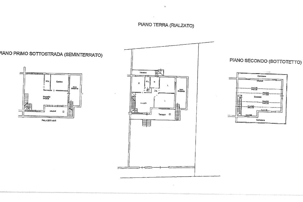
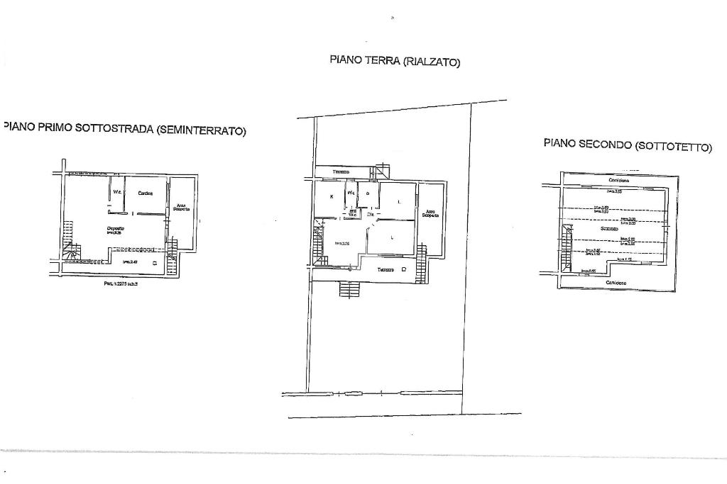
Situata nella tranquilla località di Orignano, nel comune di Baronissi, questa porzione di bifamiliare rappresenta un'opportunità per chi cerca una residenza spaziosa e moderna. Costruita nel 2018, l'abitazione si sviluppa su tre livelli. Gli interni comprendono sei locali ben distribuiti, tra cui due comode camere da letto poste al piano principale, quattro ulteriori ambienti versatili e tre bagni. La proprietà è arricchita da balconi e terrazzini, ideali per godere della luce naturale che inonda gli ambienti. Il giardino privato di ca. 200 mq offre uno spazio verde per momenti di relax all'aperto. Completano la proprietà due posti auto, garantendo comodità e praticità. La posizione strategica garantisce ottimi collegamenti con i principali servizi e vie di comunicazione, rendendo questa proprietà una scelta ideale per chi cerca comodità e tranquillità. Libera.

Per ulteriori informazioni e per organizzare una visita non esitare a contattarci.

Vi invitiamo a seguire la nostra agenzia sui nostri canali social, come Facebook, Instagram, Threads, e TikTok. Sulla nostra pagina Agenzia Tecnocasa Baronissi troverete ulteriori dettagli su questa e altre interessanti offerte immobiliari.

Mostra tutto

Nelle vicinanze

Trasporto pubblico Trasporto pubblico
Fisciano
Fisciano
1,3 Km
Baronissi
Baronissi
1,7 Km
Orignano-via Bellini 3/D
Orignano-via Bellini 3/D
190 m
Cavalcavia Hotel Dei Principati
Cavalcavia Hotel Dei Principati
250 m
Acquamela
Acquamela
2,7 Km
Ricariche auto elettriche Ricariche auto elettriche
EnelX Fast IKEA salerno
330 m
Fisciano Fratelli Napoli | EnelX
520 m
EnelX EVA+ Fisciano
1,2 Km
Galdieri Auto | EnelX
1,3 Km
Fisciano I Maggio | EnelX
2,0 Km
Scuole Scuole
Università degli Studi di Salerno
660 m
Istituto Comprensivo De Caro
850 m
Casa Simone
910 m
Istituto Tecnico Industriale Statale Focaccia
1,1 Km
Scuole
1,9 Km
Farmacia Farmacia
Farmacia Pugliese Dr. Giuseppe
2,1 Km
Supermercati Supermercati
EuroSpin
1,7 Km
Sisa
1,9 Km
Conad City
2,0 Km
Negozi Negozi
iPhame
2,1 Km
Bar Bar
Bar Scacco Matto
800 m
Bar Citro
880 m
Baroo
910 m
D' Bar
1,7 Km
Gigetto
2,1 Km
Ristoranti Ristoranti
Ristorante IKEA
270 m
Ristoranti
660 m
Autogrill
730 m
Gnam Gnam
770 m
Antico Cuoppo
880 m
Mostra tutto

Caratteristiche

Rif.:
61117521
Piano:
Su più livelli di 3
Totale piani:
3
Posti auto:
2
Balconi:
3
Terrazzi:
1
Mostra tutto
Prezzo Prezzo
€ 345.000
Rata mutuo Rata mutuo
€ 1.531 / mese
Spese annue Spese annue
€ 0
Proponi il tuo prezzoProponi il tuo prezzo

Classe Energetica

A1
A1
A1
A1
A1
A1
A1
A1
A1
EP globale non rinnovabile:
53.47 kW h/m² anno
EP globale rinnovabile:
15.42 kW h/m² anno
EP invernale del fabbricato:
EP estiva del fabbricato:
Anno di costruzione:
2018
Riscaldamento:
Autonomo
Tipo impianto:
A radiatori
Tipo alimentazione:
Metano

Ti interessa visionare l'immobile?

Fissa un appuntamento  Fissa un appuntamento

Richiedi informazioni

* Questi campi sono obbligatori

Calcola il tuo mutuo

Semplice e senza impegno
Anticipo

( % )
Mutuo

( % )

pochi semplici passi

inserisci i tuoi dati
Questionario completato
Grazie per aver richiesto un appuntamento senza impegno con un nostro Consulente del Credito e Assicurativo.

Hai inserito correttamente tutti i dati necessari e a breve riceverai una e-mail con un link da convalidare per inviare i tuoi dati.
Affiliato
Studio Baronissi Srl
Corso Garibaldi, 75A/B 84081 Baronissi (SA)

Il nostro staff


  • Antonio Bracalello
    Affiliato

  • Alessio Abate
    Collaboratore

  • Sebastiano Gianluca Annunziata
    Collaboratore

  • Anna Rega
    Affiliata
Corso Garibaldi, 75A/B 84081 Baronissi (SA)
Zona: Baronissi - Pellezzano
Mostra su mappa
Orari: 09:00-13:00/16:00-20:00
Affiliato
Studio Baronissi Srl
Corso Garibaldi, 75A/B 84081 Baronissi (SA)

2025 Tecnocasa Franchising S.p.A. - P. IVA 08365160152 - Via Monte Bianco 60/A 20089 Rozzano (MI). Ogni agenzia ha un proprio titolare ed è autonoma. Privacy policy | Policy utilizzo | Cookie policy